Exclusive 3-Storey Freehold Factory at Bukit Raja

About The Project

Armani KLM Bukit Raja is an exclusive 3-storey freehold semi-detached factory development located within the prestigious industrial enclave of Bukit Raja.

Built to support modern industrial operations, the development features:

  • Functional and efficient industrial layouts

  • Up to 300 AMP power supply

  • Freehold ownership

  • Strategic industrial location

Surrounded by established multinational and local corporations, the development offers businesses and investors a high-value industrial address with strong growth potential.

Key Highlights

Prime Industrial Location

Located within the well-established Bukit Raja Industrial Park

Industrial Neighbours

Strategically positioned among established local and multinational corporations, fostering a strong industrial ecosystem

High Power Supply

3-phase 300 amps power supply, designed to support demanding industrial operations

Strategic Connectivity

Easy access to Port Klang, Shah Alam, Klang town, and Kuala Lumpur via 5 major expressways

Multi-Industry Ready

Ideally suited for manufacturing, warehousing, logistics, and light to medium industrial operations

Heavy-Duty Flooring

(GF - 30kN/m2 & 1F/2F - 10kN/m2)

Industrial-grade, heavy-load flooring engineered to accommodate heavy machinery and equipment

Strategic Location

The project is strategically connected to key economic hubs including:

Major highways provide smooth connectivity for logistics, workforce mobility, and business expansion.

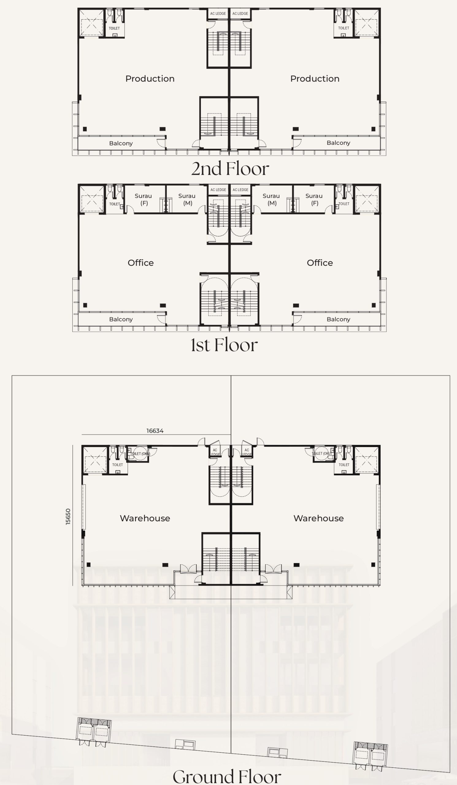
Layout Plan

TYPE A

Land Size70’ X 142’
Build Up11, 367 sqft

TYPE B

Land Size70’ X 150’
Build Up12, 621 sqft

TYPE C

Land Size70’ X 130’
Build Up10, 046 sqft

Specifications

STRUCTUREWAREHOUSE, OFFICE / PRODUCTION AREAReinforced Concrete
WALLWAREHOUSE, OFFICE / PRODUCTION AREABrickwall and/or blockwall
WALL FINISHESEXTERNALPlaster & paint (weathershield) + aluminium fins (for facade)
WALL FINISHESINTERNALPlaster & paint (emulsion)
ROOFMetal deck
CEILINGWAREHOUSESkim coat & paint
CEILINGOFFICE / PRODUCTION AREASkim coat and/or suspended ceiling & paint
WINDOWSWAREHOUSE, OFFICE / PRODUCTION AREAAluminium framed glass window
DOORSWAREHOUSEAluminium framed glass doors and/or timber doors + roller shutter
DOORSOFFICE / PRODUCTION AREAAluminium framed glass doors and/or timber doors
IRONMONGERYQuality locksets
SANITARY WARESWAREHOUSE, OFFICE / PRODUCTION AREAWater closet & Basin
FLOOR FINISHESWAREHOUSE, OFFICE / PRODUCTION AREAPower-floated concrete floor with floor hardener
FLOOR FINISHESSTAIRCASE 1Ceramic tiles
FLOOR FINISHESSTAIRCASE 2Cement render w. nosing tiles
FLOOR FINISHESTOILET / PRAYER ROOMCeramic tiles
FENCING1500mm high brickwall & GI fencing
GATEFolding gate
POWER SUPPLY300 AMP
FLOOR TO FLOOR HEIGHTWAREHOUSE8.3 M
FLOOR TO FLOOR HEIGHTOFFICE / PRODUCTION AREA5.0 M
FLOOR LOADINGWAREHOUSE3 Ton / M 2
FLOOR LOADINGOFFICE / PRODUCTION AREA1 Ton / M 2
FIRE PROTECTION SYSTEMHose reel
LIFTCARGO LIFT2000 kg
DRIVEWAYPremix

Keep in Touch

Locate Us (Our Office)